Lektion 11: Objekte einer bestehenden Selektion hinzufügen

Top  Previous  Next

Ziel

Erweitern einer vorhandenen Selektionsmenge.

 

Definitionen

Mit den Funktionen Selektieren -> Auswählen:

 

Lektion 11

 

Und Selektieren -> weitere:

 

Lektion 11

 

ist es möglich, ein oder mehrere Objekte zu selektieren, indem man sie direkt in der Grafik auswählt.

 

Der allgemeine Umgang mit den beiden Funktionen ist identisch. Als erstes wählen Sie die entsprechende Funktion aus und klicken anschließend auf die Objekte in der Grafik, die selektiert werden sollen. Um die Zuordnungsfunktion zu beenden „Enter“ drücken. Daraufhin werden die Objekte selektiert.

 

Die Funktionen unterscheiden sich, wenn zuvor schon Objekte selektiert wurden. Selektieren -> Auswählen selektiert / deselektiert die entsprechenden Objekte aber erzeugt zum Schluss eine neue Selektionsmenge.

 

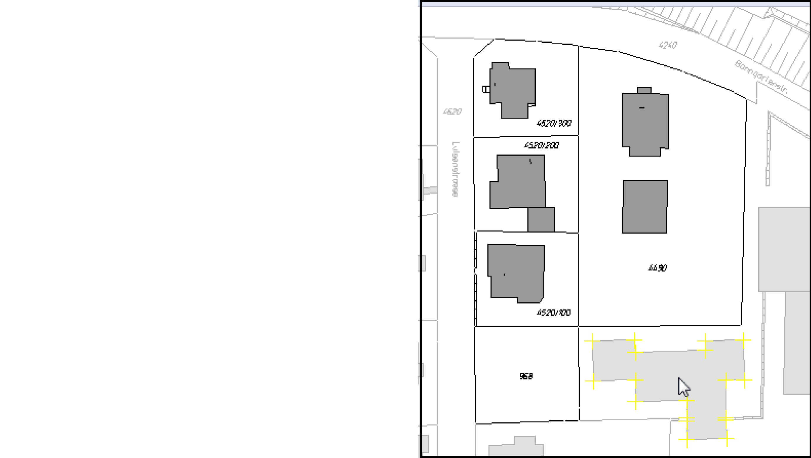
Beim Selektieren in der Anzeige werden die Objekte wie folgt dargestellt:

 

Lektion 11

 

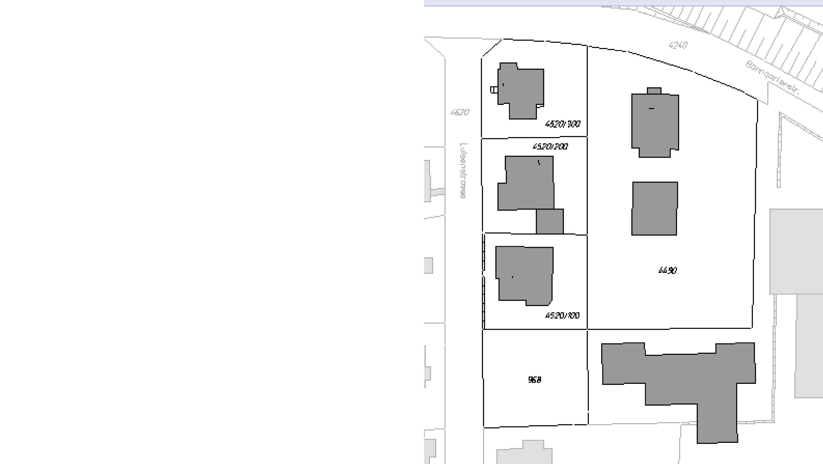
Die resultierende neue Selektionsmenge:

 

Lektion 11

 

„Selektion -> weitere“ kann nur Objekte einer Selektionsmenge hinzufügen, die zuvor nicht selektiert waren. Wenn Sie bereits selektierte Objekte auswählen, werden diese schwarz dargestellt, aber sie werden nicht aus der Selektionsmenge entfernt.

 

Lektion11-c

 

Definierte Selektionsmengen werden nicht gelöscht, die neuen Objekte werden einfach nur hinzugefügt. Die daraus resultierende  Selektionsmenge wird durch Marker in der Grafik visualisiert.

 

Lektion 11

 

Aufgabe

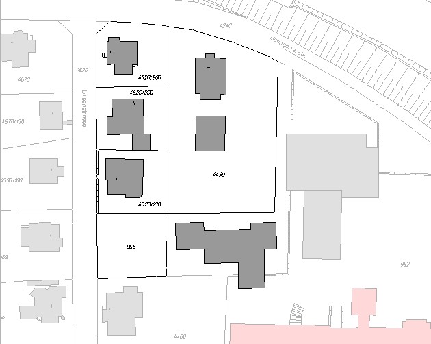
Im folgenden Schritt sollen Sie der Selektionsmenge aus Lektion 10 weitere Objekte hinzufügen.

 

Lektion 11

 

Wählen Sie als erstes die Funktion Selektieren -> weitere

 

Lektion 11

 

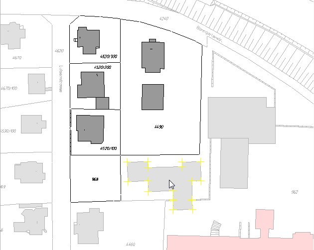
Bewegen Sie den Mauszeiger über die Objekte südlich der bereits selektierten Objekte und wählen Sie einige neue Objekte aus, die der Selektionsmenge hinzugefügt werden sollen.

Lektion 11

Drücken Sie „Enter“ um die Funktion zu beenden und zeichnen Sie die Anzeige neu.

 

image7_177

 

Die erweiterte Selektionsmenge sollte so aussehen.

Lektion 11